Иллюстрированный самоучитель по ArchiCAD 8


4d009c2a

Редактирование вставленного изображения


Изображение, размещенное на макете печатного листа, может быть подвергнуто таким операциям редактирования, как:




  •  перемещение;
  •  поворот;
  •  копирование и тиражирование;
  •  панорамирование изображения внутри рамки;
  •  изменение границ изображения.
  • Первые три операции в целом сходны с аналогичными операциями в ArchiCAD, для их выполнения служат те же самые команды, что и в ArchiCAD.

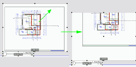
    Для панорамирования изображения внутри рамки необходимо «ухватиться» мышью за любую точку внутри рамки, а затем переместить ее в нужном направлении, после чего для завершения операции панорамирования необходимо щелкнуть мышью (рис. 10.31).

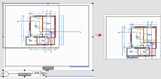
    Если требуется напечатать не все изображение, а только его фрагмент, границы изображения могут быть изменены перетаскиванием с помощью мыши узловых точек границы изображения (рис. 10.32). Если в диалоговом окне выбрана полигональная рамка чертежа, то контур ограничивающего многоугольника можно редактировать в соответствии с принятыми в ArchiCAD правилами редактирования многоугольников (перемещать и скруглять вершины, добавлять в контур дополнительные вершины, скруглять и перемещать ребра, выполнять логические операции) (рис. 10.33).

    Редактирование вставленного изображения

    Рис. 10.31. Панорамирование изображения

    Редактирование вставленного изображения

    Рис. 10.32. Изменение границ, изображения



    Содержание  Назад  Вперед